stan na prodaju Novi Sad 45m2 503821
Šifra: #503821
Pregledano: 769
Kategorija: Stanovi
Ekskluzivna ponuda
Više detalja
Opis Nekretnine
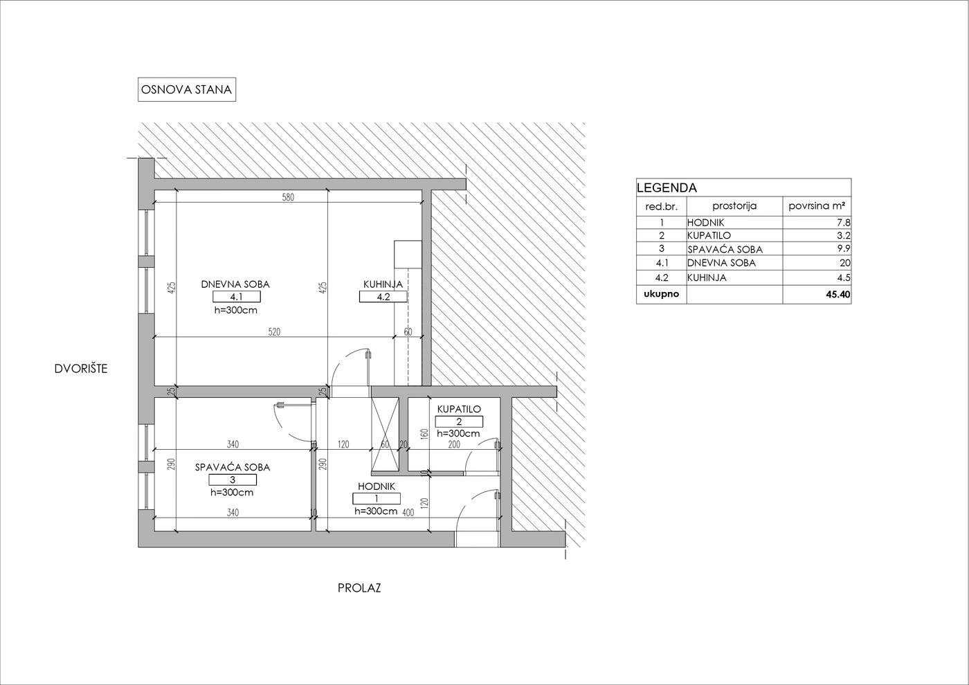
Predstavljamo vam stan na vrhunskoj lokaciji tik uz Bulevar oslobođenja. Stan je dvosoban po strukturi sa dobrim rasporedom . Pozicija stana je perfektna jer se na svega par minuta hoda nalazi Spens i Promenada, Futoška pijaca, marketi, restorani, autobuske linije dok su centar grada i Univerzitet u Novom Sadu udaljeni svega deset minuta hoda. U stanu ostaje kuhinja bez uređaja, sem šporeta, veš mašine, sto, stolice i tv komoda takođe. Ostaje ormar u spavaćoj sobi, cipelarnik i klima. Nekretnina je odlična kako za život tako i za izdavanje jer se nalazi u "srcu" poslovnog dela grada. Stan je orijentisan dvorišno što je još jedna prednost. Za više informacija nas pozovite.
Detaljnije informacije o nekretnini
Šifra
503821
Vrsta
Stanovi
Mesto
Novi Sad
Deo grada
Grbavica
Tip
Stanovi standardni
Sobnost
Dvosoban
Kvadratura
45 m2
Cena
109.180 €
Cena po m2
2.426,22 €
Stanje nekretnine
Novogradnja
Sprat
0 / 5
Tehnička opremljenost
Interfon, Telefon, Kablovska, Internet, Klima, Video nadzor, Struja, Vodovod
Pomagala
Lift
Godina izgradnje
2009
Način grejanja
Centralno

Jasna Lazić
L
Agent

NS-Group Nekretnine doo
Novi Sad, Reg.br. 711
Profil agentaNovi Sad, Reg.br. 711
Postavite pitanje o nekretnini

















