stan na prodaju Novi Sad 97m2 504796
Više detalja
Opis Nekretnine
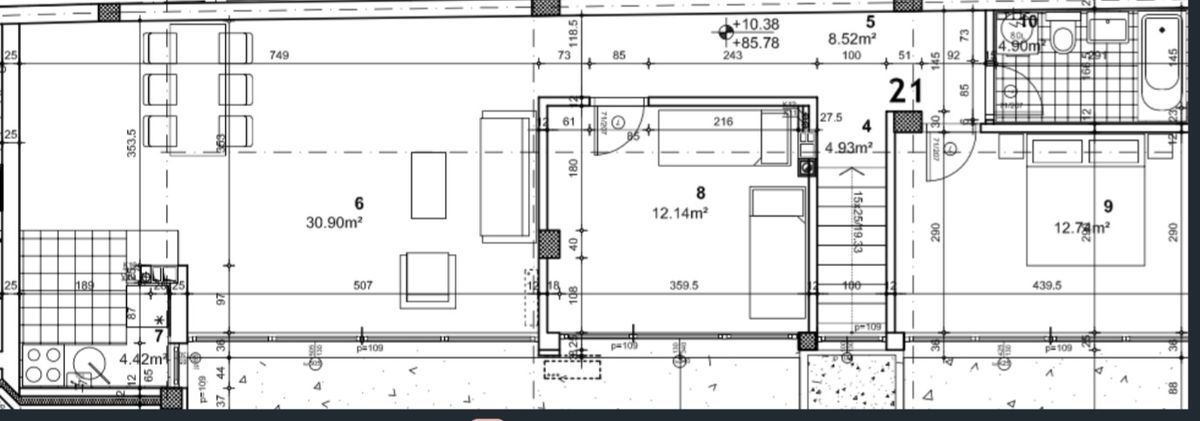
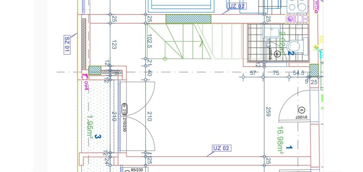
Veoma luksuzna nekretnina, visokog kvaliteta gradnje. Stan poseduje terasu od 50m2, koja nije ušla u kvadraturu stana. U cenu ulaze garažno mesto u suterenu, dve ostave i sav nameštaj. Nekretnina je uknjižena, tako da je moguća kupovina putem stambenog kredita. Za više informacija, pozovite..
Detaljnije informacije o nekretnini
Šifra
504796
Vrsta
Stanovi
Mesto
Novi Sad
Deo grada
Telep
Tip
Penthouse
Sobnost
Trosoban
Kvadratura
97 m2
Cena
334.750 €
Prateći objekti
Terasa, Parking, Ostava
Cena po m2
3.451,03 €
Stanje nekretnine
Novogradnja
Sprat
3 / 3
Tehnička opremljenost
Interfon, Telefon, Kablovska, Internet, Klima
Pomagala
Lift
Godina izgradnje
2020
Način grejanja
Daljinsko
Grejanje
Gas

NS-Group Nekretnine doo
Novi Sad, Reg.br. 711
Profil AgencijeNovi Sad, Reg.br. 711
Postavite pitanje o nekretnini

































